Golf house | concept design: beach front property with a sloping site and magnificent pacific ocean view. the brife is to design a large family house. However form environmental point of view architect should try to reduce the impact that a develpment have on the land. and the fact in most of cases people tend to focus on what they think what they may have in the future rather than what they need to have now. Some reckon thats one of the reason why average house in australia have the biggest floor areas in the world.
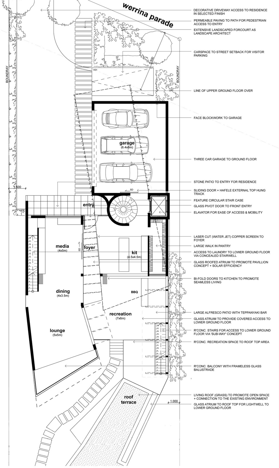
Address this issue, concept design propose three small pavilians lightly set on the site rather than one massive block to cut down the mass. the number of bedrooms also reduced. it consist a large open plan living entertainment space on ground level which separate main bedroom (upper level) and guest rooms (lower level). large sliding doors are proposed to the living area when it opens that will joining living area with central courtyard to form a massive entertainment area.
Environmental walkway to the beach and rooftop green terrace as natural elements has been placed into the development. It signals the intension of connecting architecture with environment.
site plan
ground level
upper level
lower level
elevations
section through central access
section show vertical access













